Apartment in Enfield
Reasons to book
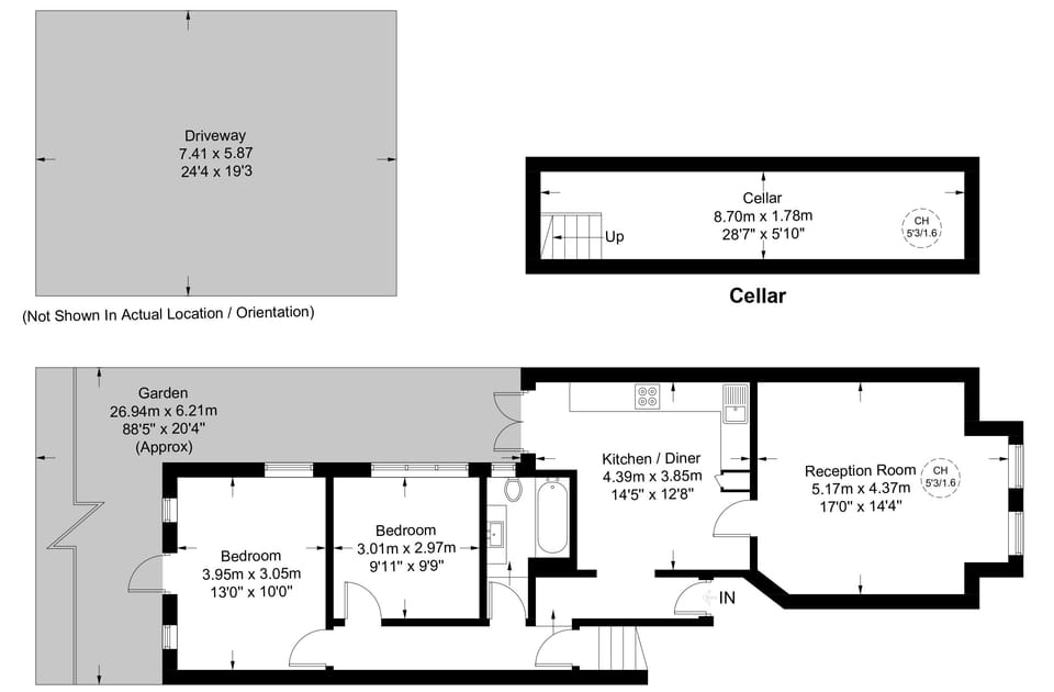
About this apartment rental
While you're here, you can enjoy all the comforts of home and more, including a refrigerator and an oven, as well as free WiFi and a flat-screen TV. Other amenities include towels, an electric kettle, kitchenware and utensils, and an ironing board.
