Villa in Lazio
Reasons to book
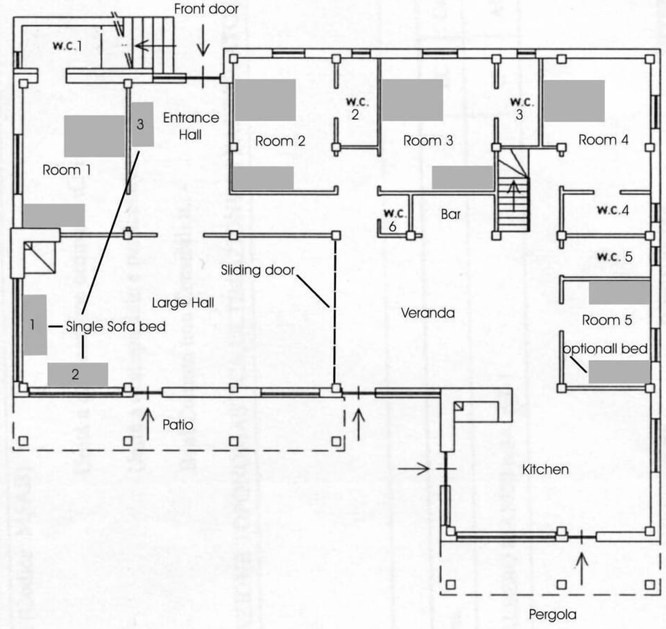
About this villa rental
Can be reached in 30-40 minutes places such as Montalcino, Pienza, Bagno Vignoni, with its famous Duomo Orvieto, Città della Pieve, Lake Bolsena where you can rent boats of various types and always in 30 minutes you arrive on Mount Amiata you can visit the Wildlife Park and observe many species of animals that live in almost natural.
