Apartment in Bad Reichenhall
Reasons to book
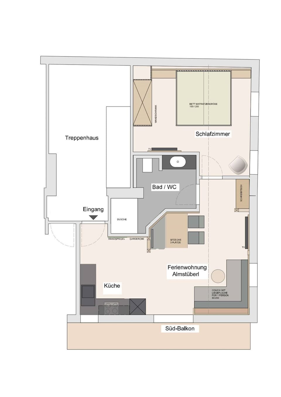
About this apartment rental
Close to cross-country skiing, cycling, and more, this pet-friendly apartment brings it all within reach. Jump into your car and make short work of the 6-minute drive to Rupertus Thermal Bath or the 4-minute drive to Old Salt Works (and enjoy the property's convenient covered onsite parking in the meantime).
No need to pay for a restaurant every night, when you've got an oven, a stovetop, and a refrigerator on hand, as well as a coffee maker, a microwave, and cookware. Enjoy the internet and cable/satellite TV.
