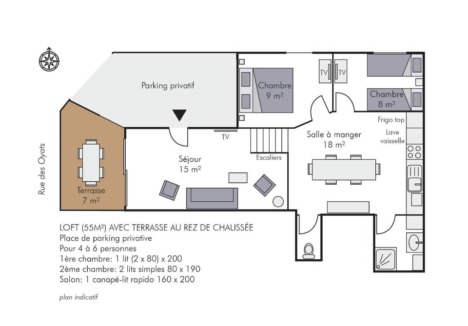
VILLA CHANTEREINE - apparts à 5 mn de la plage - BAIE DE SOMME
Top rated by guests
8.9Excellent
(130 Ratings)
"la situation, la luminosité, la terrasse, un super Appart ! la place de parking non payante !"
Verified guestDon't miss out! Price and availability may change
2 guests · 2 bedrooms · 1 bath
Guests love it hereGuests give this property a top rating
High-end valueWell priced for this area
Book with confidenceWe partner with the top travel sites so you know you're getting a great deal on the perfect rental
VILLA CHANTEREINE is located 1804 feet from the beach and offers self-catering accommodations with a furnished terrace and a patio.
Free WiFi/internet
Free Parking
Non-smoking
Heating
Balcony/Terrace
WiFi/Internet
Family friendly
Fire alarm
10.0 / 10.0Outstanding·Jan 2026
L appartement, l emplacement et la place pour se garer tranquillement
9.0 / 10.0Outstanding·Jan 2026
Überdachte große Terrasse, geräumige Wohnung, Geschäfte Restaurants direkt vor der Haustür, Strand sehr nah, wir konnten Parkplatz 3 nutzen was super war da Parkplatz 4 der zu der Wohnung gehört sehr kurz ist. Super Abwicklung mit Schlüssel und Kaution.
Ein paar Kaffeetassen mehr wären schön :)
Wenn man Geräuschempfindlich ist, ist das Fenster öffnen beim schlafen etwas lauter durch die Straße.
8.0 / 10.0Excellent·Sep 2025
la proximité de la plage
7.0 / 10.0Good·Aug 2025
La localisation et juste parfaite et calme.
Le nettoyage et vraiment a revoir.
Machine a café salle les chambres beaucoup de poussières derrière les meubles, vaisselle salle,pas de tv décodeur hss, fauteuil salon très salle, literie mieux vaux ne pas regarder surtout côté enfant.
$$$$
Top rated by guests
8.9Excellent
(130 Ratings)
"la situation, la luminosité, la terrasse, un super Appart ! la place de parking non payante !"
Verified guestDon't miss out! Price and availability may change
FAQs
Is parking included with this apartment?
Parking is not specified as an available amenity at VILLA CHANTEREINE - apparts à 5 mn de la plage - BAIE DE SOMME. For more information, we encourage you to contact the property about where to park.
Is there a pool at this apartment?
We didn’t find pool listed as an amenity for this apartment. It may be worth double checking if a pool is important for your stay.
Is VILLA CHANTEREINE - apparts à 5 mn de la plage - BAIE DE SOMME pet friendly?
Unfortunately, this apartment is not pet-friendly. Try searching again and filter for "Pets Allowed"
What amenities are available at VILLA CHANTEREINE - apparts à 5 mn de la plage - BAIE DE SOMME?
We found 8 amenities for this rental. This includes free wifi/internet, free parking, non-smoking, heating, and balcony/terrace.
