Apartment in Siena
Reasons to book
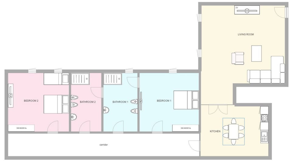
About this apartment rental
It's situated on the second floor of a 11 century building with no elevator
The apartment features 2 bedrooms , 2 bathrooms and a living area floors. air conditioning, free Wi-Fi, and a memory foam or latex mattress.
