Beautiful Dorset Country House in the Heart of the Stunning Isle of Purbeck

Top rated by guests
Broadmead
Kitchen
Kitchen
Gardens
Decking
review stars
9.4Outstanding
(10 Ratings)
"From the moment of booking, communication with the host was excellent. We were messaged on the day of arrival to inform us that we could check into the property earlier than advertised - welcome news ..."
Angie B.
Don't miss out! Price and availability may change
9.4 / 10.0
Outstanding(10 Ratings)

House in Corfe Castle

10 guests · 5 bedrooms · 2 baths

Reasons to book

Guests love it hereGuests give this property a top rating
Top-tier experienceA high end property in this area
Book with confidenceWe partner with the top travel sites so you know you're getting a great deal on the perfect rental

About this house rental

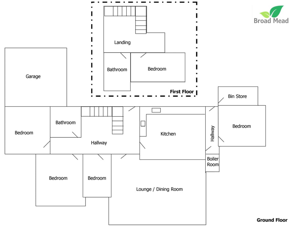
A semi rural 5 bedroom / 2 bathroom country house with a large garden and sun deck, situated on the edge of the beautiful village of Church Knowle in the heart of the Purbeck hills.

Recently refurbished throughout to a very high standard, whilst retaining many of its original features.

Enter through the front gates into a large driveway with enough space for 10 cars and this welcoming detached property set in it's own grounds of just over 3/4 of an acre will instantly make you feel at home and relaxed. With a large sun deck at the rear of the property overlooking the Purbeck hills and with plenty of outdoor seating, it really is the ideal spot for al fresco dining or relaxing with a bottle of wine.

On the ground floor you’ll find a spacious living room with a dining area and seating for up to 10 guests, fully-fitted kitchen, utility room with washing machine and tumble dryer and boot/boiler room. Also on the ground floor you will find a shower room and toilet and four double bedrooms two of which can be made up as twin rooms if required.

Upstairs you will find another double bedroom and a bathroom with a bath/shower and toilet.

Every bedroom is equipped with an alarm clock, shaver adapter and two USB sockets to charge your electronic devices.

Situated in the stunning village of Church Knowle, this spacious yet cosy country house has a whole host of amenities within a short distance including village shops, a post office, bakery, gift shops, galleries and friendly pubs run by warm and welcoming landlords.

There is also plenty to do in the area with beaches across the stunning Jurassic Coast (including Durdle Door, Lulworth Cove, Studland and Swanage all within easy reach), fantastic walking, several National Trust properties, outdoor activities and some of the South's most historical sites, such as Corfe Castle, just a short drive away.

This is the perfect location to explore all that the stunning county of Dorset has to offer and would make the ideal retreat for a romantic weekend away, or family escape to the country.

Amenities at Beautiful Dorset Country House in the Heart of the Stunning Isle of Purbeck

Non-smoking
No pets allowed
Family friendly

Map of Corfe Castle


Ratings and reviews

9.4 / 10.0
Outstanding(10 Ratings)
10.0 / 10.0Outstanding·May 2025
From the moment of booking, communication with the host was excellent. We were messaged on the day of arrival to inform us that we could check into the property earlier than advertised - welcome news as some of our group had travelled quite far.The property itself is absolutely beautiful, set in stunning grounds with amazing views. The house was decorated to a high standard and had everything you could possibly require, even extra blankets and water bottles for cold weather. There were also some lovely touches in the form of local bread, jam and honey which were left for us.The house was well equipped, the kitchen utensils in particular were new and plenty. There were even dishwasher tablets and laundry tablets to use. We were really impressed overall and give this property 10 out of 10. If I had to be picky I would say that another bathroom would be useful, but this didn’t cause us a problem and it won’t stop me from booking this property again. Thank you Alan and Clare.
8.0 / 10.0Excellent·Jan 2023
I had a good renting experience with excellent communication from owners.
10.0 / 10.0Outstanding·Oct 2022
Beautiful house in a beautiful setting with everything provided. Plenty of room for our family of 10 and spotlessly clean. The hot tub was a great hit with the younger members of the family. Alan and Clare could not have been more helpful.
6.0 / 10.0Average·Aug 2024
Lovely holiday in a beautiful location

$$$$
expedia logo

FAQs

Is parking included with this house?

Parking is not specified as an available amenity at Beautiful Dorset Country House in the Heart of the Stunning Isle of Purbeck. For more information, we encourage you to contact the property about where to park.

Is there a pool at this house?

We didn’t find pool listed as an amenity for this house. It may be worth double checking if a pool is important for your stay.

Is Beautiful Dorset Country House in the Heart of the Stunning Isle of Purbeck pet friendly?

Unfortunately, this house is not pet-friendly. Try searching again and filter for "Pets Allowed"

What amenities are available at Beautiful Dorset Country House in the Heart of the Stunning Isle of Purbeck?

We found 3 amenities for this rental. This includes non-smoking, no pets allowed, and family friendly.


Explore similar stays in Corfe Castle

Explore all stays