House in Region of Southern Denmark
Reasons to book
About this house rental
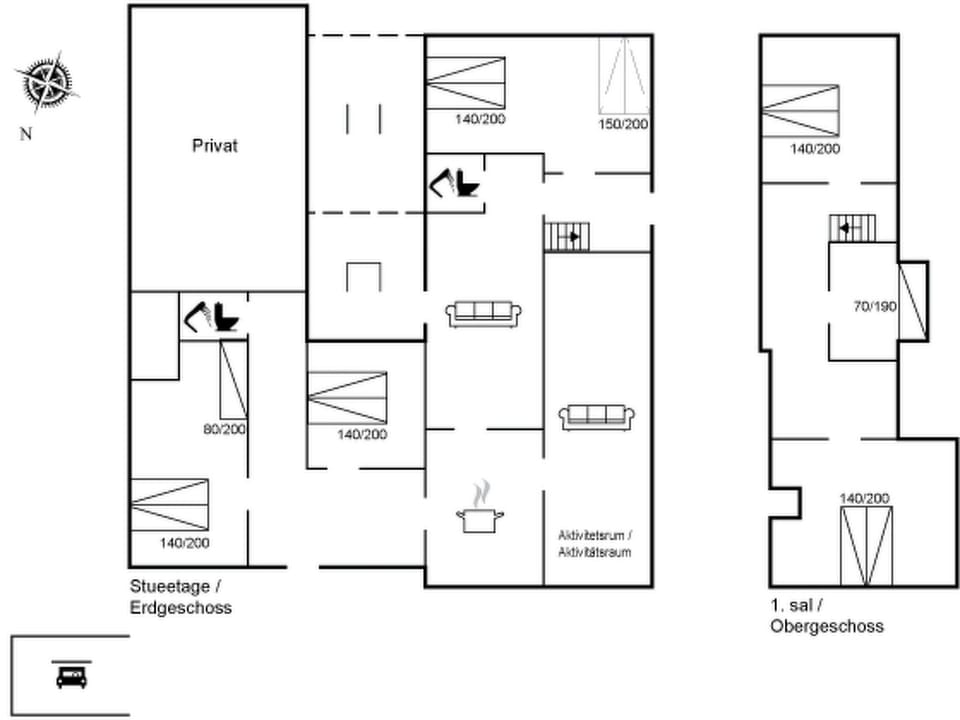
"Kiri" - 24km from the sea", 6-room house 224 m2. Object suitable for 10 adults + 2 children. Living room with TV. 1 room with 1 double bed. 1 room with 1 bed and 1 double bed. 1 room with 1 double sofabed and 1 double bed. Kitchen (oven, dishwasher, 4 ceramic glass hob hotplates, microwave, freezer). 2 showers/WC. Upper floor: living room. 1 room with 1 double bed. 1 room with 1 double bed. Facilities: children's high chair, baby cot. Internet (WiFi). Please note: non-smokers only. Maximum 2 pets/ dogs allowed. 550
Included in price:
ERV cancellation insurance
Charging point for electric car - CEE plug
Power costs (2026-03-15 - 2026-05-31)
Final cleaning (Basic cleaning is always carried out by the guest)
outdoor parking space
Interhome plants 100'000 m2 of flowering fields to save the bees
Wireless internet access (WIFI)
Own arrangement:
Laundry (bed linen and towels)
#DK6261.645.1
