House in Region of Southern Denmark
Reasons to book
About this house rental
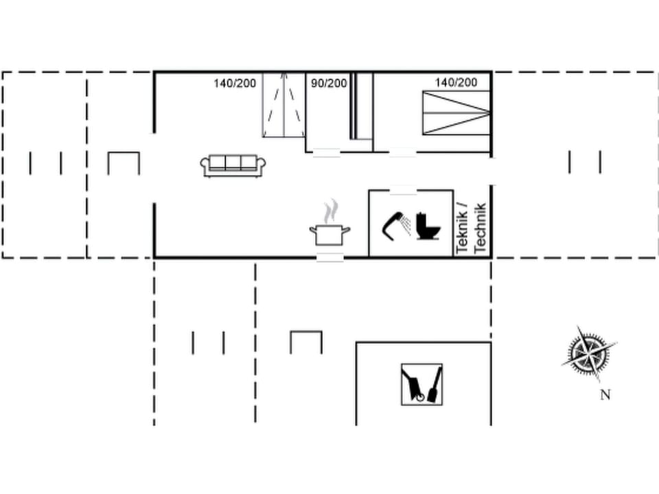
"Thomas" - 120m from the sea", 3-room house 53 m2. Object suitable for 6 adults. Living room with 1 double sofabed and TV. 1 room with 1 double bed. 1 room with 1 x 2 bunk beds. Kitchen (oven, dishwasher, 4 ceramic glass hob hotplates, freezer). Shower/WC. Terrace 30 m2, roofed. Facilities: children's high chair. Internet (WiFi). Please note: non-smokers only. Maximum 2 pets/ dogs allowed. Bookings accepted for holiday purposes only. 480-6746
Included in price:
ERV cancellation insurance
Power costs (2026-03-15 - 2026-06-04)
Final cleaning (Basic cleaning is always carried out by the guest)
Garage 1x
outdoor parking space
Interhome plants 100'000 m2 of flowering fields to save the bees
Wireless internet access (WIFI)
Own arrangement:
Laundry (bed linen and towels)
#DK5450.629.1
