Apartment in Beverly Hills, CA
Reasons to book
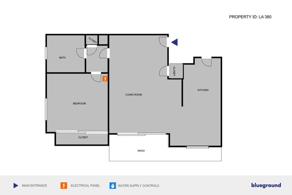
About this apartment rental
Designed with you in mind
As with any Blueground apartment, you’ll find a thoughtfully designed space complete with beautiful furniture and a fully equipped kitchen in this one bedroom property. And, thanks to our superior quality mattresses, luxury linens, and towels, you can relax knowing you’ll always feel comfortably at home. When you’re ready for some fun, you can take in the Los Angeles vibes or bring the entertainment to you with the premium wireless speaker or smart TV.
Sleeping arrangements
King Bed, 70.8in/180cm
Amenities
Building amenities unique to this one bedroom apartment include an on-site:
- Dryer in building
- Elevator
- Washing machine in building
- Parking
- Pets allowed
Arrival and ongoing support
The entire apartment is yours to enjoy!
Throughout your stay, you’ll have access to our Client Experience team through the Blueground App. You can schedule additional cleanings, submit maintenance requests, and view our neighborhood recommendations with just a few taps.
We’ll share all details upon confirmation of your stay.
Ideally Located
This furnished apartment is located in Beverly Grove, perfectly situated between West Hollywood, La Brea, Fairfax and Beverly Hills. Life here revolves around two major shopping centers: The Grove and The Beverly Center, which both house their own collection of high-end stores and name-brand eateries. This Mid-City neighborhood is markedly quiet with sprawling blocks of modern homes. Other landmarks of Beverly Grove include the Cedars Sinai Medical Center and the Four Seasons Los Angeles at Beverly Hills.
Other things to note
This Blueground apartment has flexible lease options, allowing you to book it for one month, a year, or more.
Pets are welcome, though weight limits and breed restrictions apply and may incur fees.
Parking is offered based on availability and is subject to a fee.
We take great pride in ensuring every photo displayed is shot in our own units with our actual furnishings. That said, we regularly refresh our decor and furniture arrangement, which may differ from what’s pictured.
A security deposit of $500 is required at booking, which will be returned within 2-4 weeks after the check-out, minus any deductible damages.
