Apartment in Florence
Reasons to book
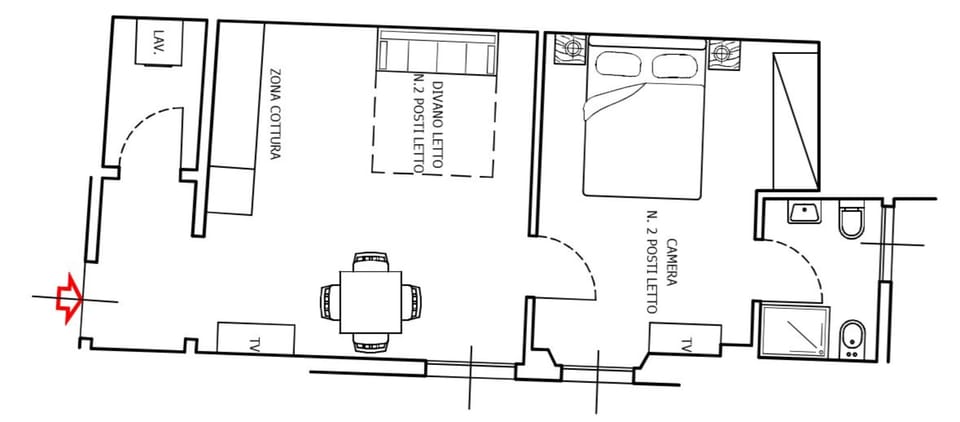
About this apartment rental
Situated in the city center, this welcoming apartment brings all of Florence within your reach. You're conveniently located within a 5-minute walk of Piazza di Santa Maria Novella and Chiesa di Ognissanti. Check out other neighborhoods and see more of Florence by hopping on a metro at either Alamanni - Stazione Santa Maria Novella Tram Stop or Unità Tram Stop, both just 5 minutes away by foot.
Prepare a home-cooked meal in the kitchen, complete with an oven, a stovetop, and a refrigerator, as well as a coffee maker, an electric kettle, and a microwave. Connect to the WiFi, or get cozy in front of the TV. Bathroom amenities include a hair dryer, towels, and toilet paper. And you can even travel light because you'll have access to laundry facilities. Other amenities at this 1-bedroom, 1-bathroom rental include bed sheets, an ironing board, air conditioning, and heating.
