House in Oceano, CA
Reasons to book
About this house rental
DOWNSTAIRS FEATURES:
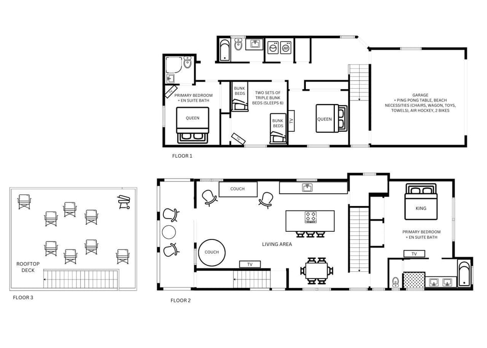
Bedroom 1: Queen bed with a dresser, two nightstands, and a Smart TV.
Bedroom 2: 2 sets of triple high bunk beds, a dresser, and a Smart TV. (Sleeps 6!)
Bathroom 1: Full bathroom with a shower/tub.
Laundry room equipped with a washer and dryer.
Bedroom 3: Downstairs Master Suite with a queen bed, dresser, two nightstands, and a Smart TV.
Bathroom 2: Connected to Bedroom 3, a full bathroom with a shower.
2 Car Garage stocked with a ping pong table, hover hockey table, corn hole, 2 bikes, beach chairs, ice chest, and beach toys. Garage accommodates 2 cars, and the driveway fits 2 more.
Outdoor shower with hot water, perfect for rinsing off sand after a day at the beach.
UPSTAIRS FEATURES:
Bedroom 4: Very Spacious Master Suite with a king bed, dresser, two nightstands, and a Smart TV.
Bathroom 3: Attached to Master Suite Bedroom 4, this bathroom includes a large jetted tub, shower, two sinks, and a toilet room.
Bathroom 4: Convenient half bath located near the kitchen for upstairs use.
Living room has a Smart TV, a couch, two chairs, and a large oversized circular couch.
Large fully stocked kitchen with pots, pans, baking sheets, oils, spices, coffee, tea, silverware, dishes, and glasses.
Dining table that seats 6 and extends to accommodate 2 more.
Deck off the living room with two chairs, offering views of the lagoon and dunes.
ROOFTOP DECK:
BBQ & Fire Pit with propane provided.
Sink and countertop for easy food preparation and clean-up.
Fire pit is surrounded by 4 comfortable chairs plus Adirondack chairs that can be easily moved around the deck.
As our valued guest, you'll enjoy exclusive access to the entire home, from the comfortable bedrooms to the large, open living spaces and everything in between.
We are committed to providing you with an unforgettable experience throughout your stay! Our dedicated property managers are available to ensure your comfort and convenience. Whether you have questions, concerns, or need assistance with the home, our managers are ready to help. Please don't hesitate to reach out if there's anything we can do to make your stay more enjoyable.
Nestled in a charming neighborhood, this stunning home offers an idyllic setting just steps away from the sun-kissed sands and exciting ATV/quad rental locations. Revel in the delight of year-round beach bonfires with firewood readily available at nearby convenience stores.
Enjoy easy access to a plethora of attractions, including the vibrant 5 Cities Outlets, the bustling Downtown Pismo and a variety of local grocery stores, all within a short 5-minute drive.
The real highlight of this beach retreat is the convenient proximity to the beach itself, which serves as the ultimate playground for all ages, just a few steps away from your doorstep.
Our property features ample parking with a 2 car driveway and a 2 car garage, in addition to convenient street parking options. We kindly request that you avoid parking in front of neighbors driveways or mailboxes. Furthermore, Uber and Lyft are well-acquainted with our area, providing a hassle-free means of transportation.
We are happy to accommodate stays of 60+ days. Please reach out directly for more details!
Additional cleaning that is required above the normal wear & tear is a $150 fee. Late checkout without prior consent is $150 fee. Smoking on the premises is a $250 fee. Guest that is booking must be at least 25 years old. No EV Charging allowed. Guest will be asked to cover the extra charges if an EV vehicle is charged during their stay.
Our home has a max amount of 12 guest. To ensure comfort and safety, we kindly ask that no more than 12 people occupy the premises at any given time unless prior approval is received. This includes those spending the night and also those enjoying the home during the day. If you are hoping to have more than 12 people in the home, please obtain approval before you book your stay. We have an extra fee of $100 per person per day for any unapproved visitors over the 12th guest.
VACATION RENTAL AGREEMENT
Date: As provided from your booking site
This Vacation Rental Agreement (the “Agreement”) is made between the Owners (“Owner”) and the following Guest(s) (collectively, “Guest”):
Name: As provided from your booking site
In consideration of the mutual covenants and agreements contained in this Agreement, Owner rents to Guest and Guest rents from Owner the furnished premises located at the “Premises”, on the following terms and conditions:
SECTION ONE. TERM; RENT; SECURITY DEPOSIT
The term of this Agreement shall be for the dates and time as provided from your booking site. Guest shall pay to Owner rental amount and security deposit as provided from your booking site. The security deposit is not to be considered prepaid rent, nor shall any damages claimed be limited to the amount of the security deposit. Owner will submit to Guest an itemized list of any damages and/or missing items claimed to have been caused by Guest and return the entire security deposit less damages and other lawful deductions within twenty-one (21) days after termination of the Agreement.
Additional charges can be made for additional cleaning expenses or to clean excessive dirt/damage (bathrooms, floors, walls, appliances) in order to put the house and the things in it, back into the condition it was received in. Excessive dirt is anything over and above light cleaning. Owner acknowledges receipt from Guest as payment in full for rent and security deposit. “Service Fees” are not charged or collected by Owner, and Owner cannot waive or refund the same.
SECTION TWO. CANCELLATIONS
Cancellations policy shall follow what is provided from your booking site.
SECTION THREE. PERMITTED USE
Guest shall use the Premises exclusively as a private vacation residence for occupancy by no more than the number of persons as provided from your booking site. There is an extra guest fee of $100 per person per night for any extra unauthorized guests. Guest may park in the garage (if applicable) or on the driveway. Guest shall not block neighboring driveways or mailboxes.
Guest shall not engage in conduct so as to interfere substantially with the comfort and safety of residents of adjacent buildings.
We uphold the highest standards of cleaning and sanitizing the home between each and every guest. However, by renting this home you are entering the property voluntarily and take full responsibility for your own health and welfare. Owners will not be held liable.
SECTION FOUR. COVENANTS OF GUEST
Guest agrees that:
Guest shall abide by the house rules of the owner, property manager, or booking agent as provided to the Guest.
Guest is at least twenty-five (25) years of age.
No smoking of any kind (including e-cigarettes and vaping, cannabis) is allowed in or upon the Premises. Violation of the no-smoking covenant may result in cleaning and/or damage fees.
No illicit drug use.
No pets or animals shall be kept in or upon the Premises. Violation of the no pets covenant may result in cleaning and/or damage fees.
Guest shall be responsible for all damage, breakage, and loss to the premises, except normal wear and tear. Accidents and damage should be reported to Owner immediately.
Guest shall leave the Premises in the same general and good habitable condition as the Premises were in at the beginning of the term of this Agreement.
Unless otherwise arranged with the owner or property manager, the 11:00 am check out time is crucial for the cleaning contractor to perform housekeeping duties. Therefore, please note unauthorized late check-outs will be subject to a $150 charge.
Guest agrees to allow Owner to enter and view the Premises, both inside and outside (1) to inspect the Premises; (2) to make repairs to the Premises; or (3) if applicable, to show the premises to a prospective Guest.
Guest shall not keep or have on the Premises any article or thing of a dangerous, inflammable or explosive character that might substantially increase the danger of fire on the premises or that might be considered hazardous materials.
SECTION FIVE. FURNISHINGS
The Premises are leased furnished. Guest agrees to take good care of the furniture, carpets, draperies, appliances, other household goods, and the personal effects of Owner and further agrees that Guest will deliver up same to Owner in good condition at the end of this Agreement, normal wear and tear excepted.
Guest acknowledges that the furnishings include, but are not limited to, boogie boards, outdoor burner grill, etc. and that such furnishings are to be used for their intended purpose. Guest further acknowledges that Owner neither makes nor shall be deemed to have made: (1) any warranty or representation, either express or implied, as to the design or condition of, or as to the suitability for any purpose of, all or any of the furnishings, or as to the ability of all or any of the furnishings to perform any function; or (2) any warranty or merchantability of all or any of the furnishings, it being agreed that all risk of loss, as between Owner and Guest, is to be borne by Guest, and the benefits of any and all implied warranties and representations of Owner are hereby waived by Guest.
SECTION SIX. MAINTENANCE AND REPAIRS
In the event that the Premises require maintenance or repairs during Guest’s occupancy, Guest shall contact the Property Manager whose information is provided upon check in.
SECTION SEVEN. INDEMNIFICATION
