Apartment in Oxford
Reasons to book
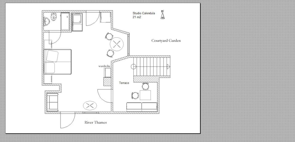
About this apartment rental
It is the most spacious of the Folly Bridge apartments. It has its own front door and a small private conservatory for outside dining or reclining, fishing or catching crayfish. On winter days you can lounge inside on the love-seat in the sun, reading your book, gazing downstream. Our new wharf allows you to take Gerry's Ferry upstream to the Port Meadow and the ruins of Godstown nunnery or downstream to the Isis pub and Iffley.
Paul du Toit's large acrylic on canvas Seascape hangs above the bed and the small oil painting Vibrations (also by him) hangs in the entrance. In the kitchen area there is a charcoal drawing: Cape Town Street Scene. The studio has Italian stone floors warmed by underfloor heating and a finely woven gabbeh rug. There is superfast fibre optic broadband and a flatscreen TV/DVD.
Folly Bridge House bathrooms are small. Their size is dictated by trying to introduce 21st comfort into a heritage house. So, if a large bathroom is a critical element of your enjoyment, FBH is not for you. They are new, bright with a water softening shower and hairdryer.
The hideaway kitchen is cleverly designed to provide for modern living, almost invisibly: double induction hob, full-sized undercounter fridge with ice box and microwave and all the elegant necessities of city living, including a Nespresso pod Coffee Machine. (A combination convection oven/microwave/grill is available on request). The latest in ventilation systems removes cooking smells, steam and Oxford's notorious damp climate from the apartment, replacing them with fresh, warmed air drawn in from above the trees at a rate of 180 cubic metres per hour.
The house is one of Oxford's iconic buildings. It has 7 self-contained luxury studios (for more information on the whole house search for follybridgehouse). It has been beautifully restored by a potter and a photographer. They describe it as 'eco chic'. Guests can enjoy their collection of modern art and ceramics. A crenellated Victorian tower standing in the River Thames at the point of the original 900 AD oxen ford, it conjures all the romance of the city. This is the spot where Alice in Wonderland was invented by Lewis Carroll. On Folly Bridge, the 13th century philosopher and alchemist Roger Bacon had a tower. From the roof, the River Thames and the dreaming spires of the city spread out before you.
Oxford's most fashionable riverside restaurant, stands across the courtyard. The Folly offers a discount to our guests for dinner.
